Пчеловодство Беларуси
пчеловодам, производителям, потребителям
Поиск       Вход | Регистрация
Рейтинг Коментариев       Показать по: 10, 25, 50.
Активные ТемыРейтинг ТемПоследние Темы и Комментарии

!
по идее торговля.там нужное выбрать при регистраци... - > Открытие ИП по реализации продукции пчеводства. - > Форум
1       21:23 08.12.2019
Ответить
4

по идее торговля.там нужное выбрать при регистрации

сразу узнавайте про налоги

+ как минимум будет идти фсзн нехилый + есть ограничения по ...
( Читать дальше )


!
Ульевая рамка гнездовая - > Устройство улья - общее описание для всех типов. - > ... - > Инвентарь, Оборудование, Инструменты - Чертежи, Описание, Идеи - > Содержание Пчел
1       10:02 27.11.2016
Ответить
1

Ульевая рамка гнездовая служит для отстройки пчелами гнездовых сотов. Она состоит из верхнего бруска с плечиками, нижнего бруска и двух боковых ...
( Читать дальше )


!
Полурамка - магазинная рамка для улья - > Устройство улья - общее описание для всех типов. - > ... - > Инвентарь, Оборудование, Инструменты - Чертежи, Описание, Идеи - > Содержание Пчел
1       10:03 27.11.2016
Ответить
1

Полурамки (для надставки) делают размером 435×;145 мм. Длина верхнего бруска 470 мм, ширина 25 мм, толщина 22 мм; боковая планка имеет ...
( Читать дальше )


!
Гнездовые рамки многокорпусного улья - > Устройство улья - общее описание для всех типов. - > ... - > Инвентарь, Оборудование, Инструменты - Чертежи, Описание, Идеи - > Содержание Пчел
1       10:04 27.11.2016
Ответить
1

Гнездовые рамки многокорпусного улья имеют размер 435×;230 мм. Длина верхнего бруска 470 мм, ширина 25 мм, толщина 20 мм. С обеих ...
( Читать дальше )


!
улей - Секционные рамки - > Устройство улья - общее описание для всех типов. - > ... - > Инвентарь, Оборудование, Инструменты - Чертежи, Описание, Идеи - > Содержание Пчел
1       10:05 27.11.2016
Ответить
1

Секционные рамки предназначены для получения сотового меда в небольших количествах (секциями). Размер каждой секции 110×;110 мм. Изготовляют секции обычно из ...
( Читать дальше )


!
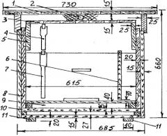
16-рамочный утепленный улей (белорусский) с чертежами и описанием - > Ульи, общие правила для всех типов. Описание отдельных конструкций! - > Инвентарь, Оборудование, Инструменты - Чертежи, Описание, Идеи - > Содержание Пчел
1       09:04 29.11.2016
Ответить
1

16-рамочный утепленный улей (белорусский) с чертежами и описанием 16-рамочный утепленный улей (белорусский) с чертежами и описанием 16-рамочный утепленный улей (белорусский) с чертежами и описанием

16-рамочный утепленный улей (белорусский). В некоторых районах страны пчел содержат в утепленных ульях. Утепленные передняя и задняя стенки улья позволяют пчелам ...
( Читать дальше )


?
о сайте союза - > Союза пчеловодческих организаций - БелАпиЮнион - > Каталог Организаций - > Другие Темы
bezak       17:29 01.05.2017
Ответить
1

Почему за сайтом никто не смотрит? Никакой активности, никакого ...
( Читать дальше )


!
Возможен обмен на Апидомик.... - > Прицеп для пчел - > Бывшее в Употреблении - > Товары
Ford5556       14:01 09.01.2017
Ответить
1

Ford5556 - 08:37 19.12.2016 - Прицеп для пчел
Продам полуприцеп,под сидельный тягач, для перевозки пчел. Без документов. двухосный.

находиться в Брестской губернии, Березовский ...
( Читать дальше )


!
еще один продуктивный способ производства рамки гофмана для пчел на станке - > Рамки - конструкции, размеры, сборка, навощивание - > Инвентарь, Оборудование, Инструменты - Чертежи, Описание, Идеи - > Содержание Пчел
1       19:13 14.02.2017
Ответить
1

еще один продуктивный способ производства рамки гофмана для пчел на станке



Изготавливаю боковые планки для рамок. Более продуктивным способом.

По аналогии остальное.

единственное ...
( Читать дальше )


!
список применяемых в пчеловодстве товаров - > что требуется в работе пчеловоду? - > Перспективы Развития Пчеловодства
1       23:41 05.11.2016
Ответить
1

1 химикаты

1.1 каустическая сода

1.2 хлористый кобальт ( лучше таблетки)

2 деревообработка

2.1 ульи на 10, 12,16,20,24 рамки (учет размера рамок: на 300 и ...
( Читать дальше )


!
коротенько о мероприятии. - > БЕЛОРУССКАЯ ПАСЕКА -2017 - > Мероприятия - > Обучение
1       12:08 19.11.2017
Ответить
1

извините не печатал интересные моменты докладов сразу в сеть. по предыдущему опыту, данное представление получается плохо читаемым(при вводе текста часто происходит ...
( Читать дальше )


!
интересные вопросы поднимал Малыхин представитель ... - > БЕЛОРУССКАЯ ПАСЕКА -2017 - > Мероприятия - > Обучение
1       13:15 20.11.2017
Ответить
1

интересные вопросы поднимал Малыхин представитель украины.

а именно:

- объединение и популяризация пчеловодства казахстана.

- развитие апитерапии в казахстане.

- получение и хранение, противопоказания и ...
( Читать дальше )


?
Наложенным платежом высылаете ? ... - > ВОЩИНА БЕЗОБМЕННАЯ - > Матки, Пакеты, Семьи, Вощина - > Товары
BNR_1918       10:52 09.02.2018
Ответить
1

Наложенным платежом высылаете ? ...
( Читать дальше )


?
Доставка - > Пчелы Карника - > Матки, Пакеты, Семьи, Вощина - > Товары
Игорь       19:39 10.03.2018
Ответить
1

Добрый день! Есть ли доставка в ...
( Читать дальше )


!
рамки - какие варианты рамок практичнее заказывать?! - > Инструкция столяру по изготовлению инвентаря для пчеловодов! - > Инвентарь, Оборудование, Инструменты - Чертежи, Описание, Идеи - > Содержание Пчел
1       12:52 21.12.2016
Ответить
1

рамки - какие варианты рамок практичнее заказывать?! рамки - какие варианты рамок практичнее заказывать?! рамки - какие варианты рамок практичнее заказывать?!

с одной стороны вопрос крайне простой.

но с другой стороны достаточно важный.

многим важны как сделано соединение, какой материал.

Это конечно супер!

Но ...
( Читать дальше )


!
Сушь - > Стоит использовать чужую сушь или лучше посадить семью пчел на ващину? - > Форум
WolfRamm       09:22 02.06.2016
Ответить
1

Настоятельно рекомендую все эти рамки отправить в костер - скорее всего, пчел у прежних хозяев не стало именно из-за них. Мертвые ...
( Читать дальше )


!
Причины плохой зимовки и что мы можем сделать?! - > Немного о зимовке. - > ... - > Содержание Пчел
Иван Д.       22:31 27.02.2017
Ответить
1

Но давайте разберем причины плохой зимовки и что мы можем сделать и чем помочь зимующим семьям в настоящее время.

Погибшие семьи – ...
( Читать дальше )


!
Ранний расплод - Еще одна опасность! - > Немного о зимовке. - > ... - > Содержание Пчел
Иван Д.       22:35 27.02.2017
Ответить
1

Еще одна опасность – начало выращивания расплода, что ведет к быстрому расходу корма. Зимующая семья без расплода расходует корм очень экономно, ...
( Читать дальше )


!
Хватит ли корма до облета пчел?! - > Немного о зимовке. - > ... - > Содержание Пчел
Иван Д.       22:43 27.02.2017
Ответить
1

Основной вопрос волнующий сейчас пчеловода – а хватит ли корма до облета. И если в среднем пасека хорошо накормлена, осенью было ...
( Читать дальше )


!
Зимовка сильных и слабых пчелиных семей - > Немного о зимовке. - > ... - > Содержание Пчел
Иван Д.       22:44 27.02.2017
Ответить
1

Часто слышу что чем сильнее семья, тем меньше корма на единицу пчел она расходует. И это верное утверждение вводит в заблуждение. ...
( Читать дальше )


!
Микроклимат в улье зимой! - > Немного о зимовке. - > ... - > Содержание Пчел
Иван Д.       22:57 27.02.2017
Ответить
1

Некоторые авторы отмечают положительное влияние углекислого газа в концентрации до 4-5% (Хозяин №12 стр.38) на понижение жизненной активности пчел в клубе ...
( Читать дальше )


!
Еще несколько нюансов зимовки - > Немного о зимовке. - > ... - > Содержание Пчел
Иван Д.       23:10 27.02.2017
Ответить
1

Какое количество непереваримых остатков пчелы могут удержать (0.43мг) или какое количество меда съесть без последствий ( без опонашивания) вопрос риторический. К ...
( Читать дальше )


!
Скоба тип 90 - > скоба тип 90 30мм - > Материалы - > Товары
WolfRamm       11:26 23.11.2016
Ответить

Покупал скобы тип 90 и гвозди под степлер в магазине "220 вольт" в ТЦ All House ...
( Читать дальше )


!
Ошибкой считать, что появится кто-то и сделает всем счастье, а все будут сидеть при этом как зрители! - > перспективы развития - поднимаемые ранее вопросы - > Перспективы Развития Пчеловодства
МОЭ       18:35 27.12.2016
Ответить

Один человек не решит проблем. Это как вера в доброго царя. Роль личности - в объединении или единении. Первый сделанный шаг ...
( Читать дальше )


!
ну ты просто молодца :) супер штуку сделал :&#... - > столярная мастерская, пилорама под рукой - > Инвентарь, Оборудование, Инструменты - Чертежи, Описание, Идеи - > Содержание Пчел
1       15:15 08.02.2017
Ответить

ну ты просто молодца :) супер штуку сделал :)

золотые руки :) и чувствуется был хороший доступ к запчастям ...
( Читать дальше )


!
Растение с розовыми цветами и даже листиками - эт... - > Время цветения медоносов Вашей местности!? - > Медоносы
bezak       21:59 18.04.2017
Ответить

1 зелье уже недельку цветет розовые и белые мелкие цветы. на розовых цветках шмеля вчера видел.
Растение с розовыми цветами и ...
( Читать дальше )


!
+375336745740 г. Брест, на одну 145 рамку ... - > Блистерная рамка для производства секционного сотового меда - > Рамки - > Инвентарь
bee       15:49 07.05.2018
Ответить

+375336745740 г. Брест, на одну 145 рамку комплект 6 ...
( Читать дальше )


!
Дягильный мед - > Сорта меда. Профессиональный подход. - > Мед - > О Продуктах Пчеловодства
1       10:07 27.01.2020
Ответить

Дягильный мед - это мед из нектара преимущественно дягиля лекарственного, широко распространенного в России, Крыму, Беларуси, на ...
( Читать дальше )


!
Скорее это клен ясенелистный или американский - о... - > Время цветения медоносов Вашей местности!? - > Медоносы
bezak       22:35 18.04.2017
Ответить

1 - 17:47 07.04.2017 - В городке у ЖД вокзала ясень зацвел
В городке у ЖД вокзала ясень зацвел
Скорее это клен ...
( Читать дальше )


!
бакфаст - > продажа отводков - > Матки, Пакеты, Семьи, Вощина - > Товары
Зинаида       12:47 08.05.2018
Ответить

Здравствуйте! сколько стоит бакфаст пчелопакеты?и в Татарию можете отправить?с уважением к ВАМ ...
( Читать дальше )


!
Донниковый мед - > Сорта меда. Профессиональный подход. - > Мед - > О Продуктах Пчеловодства
1       10:17 27.01.2020
Ответить

Донниковый мед - один из самых ценных сортов меда - это мед, выработанный медоносными пчелами из нектара преимущественно донника.Он очень светлый, ...
( Читать дальше )


!
Не объединить пчеловодов РБ, не создав подразделений с их руководителями на местах. - > перспективы развития - поднимаемые ранее вопросы - > Перспективы Развития Пчеловодства
NIVAR       20:25 27.12.2016
Ответить

типичная ошибка нашего белорусского пчеловодческого движения, которое не может добиться единства, не создав целостной единой структуры. Вам, как человеку изучающему зарубежные ...
( Читать дальше )


!
Я живу в барановичах в своем доме там же и строюсь... - > ОДНИ ВОПРОСЫ))) - > Форум
mativ7       16:30 08.02.2017
Ответить

Я живу в барановичах в своем доме там же и строюсь)) там же и пчел хочу завести прикупил два улья б/у ...
( Читать дальше )


!
Ольха черная или серая, медонос... - > Время цветения медоносов Вашей местности!? - > Медоносы
bezak       22:37 18.04.2017
Ответить

1 - 08:20 09.03.2017 - в парке несвижского замка. еще одно дерево замет
в парке несвижского замка.

еще одно дерево заметил ...
( Читать дальше )


?
где в белорусии купить хлористый кобальт в таблетк... - > Где в Белоруссии можно купить хлористый кобальт в таблетках? - > Ветпрепараты и Химикаты - > Товары
275749       20:03 27.08.2017
Ответить

где в белорусии купить хлористый кобальт в ...
( Читать дальше )


!
Мед - как лечебное средство. СПОСОБЫ ПРИМЕНЕНИЯ И ДОЗИРОВКА. - > МЕД - КАК ЛЕКАРСТВЕННОЕ СРЕДСТВО. ПОКАЗАНИЯ К ПРИМЕНЕНИЮ МЕДА. - > Мед - > О Продуктах Пчеловодства
Гость       20:22 26.12.2017
Ответить

Мед - как лечебное средство. СПОСОБЫ ПРИМЕНЕНИЯ И ДОЗИРОВКА. Мед - как лечебное средство. СПОСОБЫ ПРИМЕНЕНИЯ И ДОЗИРОВКА. Мед - как лечебное средство. СПОСОБЫ ПРИМЕНЕНИЯ И ДОЗИРОВКА.

СПОСОБЫ ПРИМЕНЕНИЯ МЕДА.

-Прием внутрь: в чистом виде

или с водой (медовая вода).


-Наружно, как в чистом виде, так и в различных смесях.

-Ректально, ...
( Читать дальше )


!
Ежевичный мёд - > Сорта меда. Профессиональный подход. - > Мед - > О Продуктах Пчеловодства
1       10:19 27.01.2020
Ответить

Ежевичный мёд - мед с кустарников ...
( Читать дальше )


!
Необходимо видеть всю картину целиком! - > перспективы развития - поднимаемые ранее вопросы - > Перспективы Развития Пчеловодства
сирота канадская       20:41 27.12.2016
Ответить

многие из здесь присутствующих имеют узкоспециализированное образование,а опыт ими взят из боевых действий. Моё уважение к таким людям. Но " беда ...
( Читать дальше )


!
ну мы почти соседи по пасекам :) магазинов ты... - > ОДНИ ВОПРОСЫ))) - > Форум
1       19:13 08.02.2017
Ответить

ну мы почти соседи по пасекам :)

магазинов ты на улик сколько сделал ? по одному мало по моему, там конечно как ...
( Читать дальше )


!
Недалеко от несвижа. может я этого слишком хочу&#... - > Время цветения медоносов Вашей местности!? - > Медоносы
1       19:50 07.03.2017
Ответить

Недалеко от несвижа.

может я этого слишком хочу,

но уже второй день вижу на участке на орехе лесном открывающиеся сережки и сегодня ...
( Читать дальше )


!
вот видео работы пчелок по данным цветочкам ... - > Время цветения медоносов Вашей местности!? - > Медоносы
1       21:30 18.04.2017
Ответить

вот видео работы пчелок по данным ...
( Читать дальше )


!
Мед - как лекарственное средство. ХРАНЕНИЕ МЕДА. - > МЕД - КАК ЛЕКАРСТВЕННОЕ СРЕДСТВО. ПОКАЗАНИЯ К ПРИМЕНЕНИЮ МЕДА. - > Мед - > О Продуктах Пчеловодства
Гость       21:08 26.12.2017
Ответить

ХРАНЕНИЕ МЕДА.

Мед нужно хранить в плотно укупоренной таре, лучше в стеклянной. Мед нельзя хранить в медных емкостях, сосудах из свинца и ...
( Читать дальше )


!
добры день. Иван извиняется что не может сам ответ... - > продажа отводков - > Матки, Пакеты, Семьи, Вощина - > Товары
1       18:06 11.05.2018
Ответить

добры день. Иван извиняется что не может сам ответить, на пасеке работает плохо интернет.

у него к сожалению нет возможности предоставить ...
( Читать дальше )


!
Змееголовниковый мёд - > Сорта меда. Профессиональный подход. - > Мед - > О Продуктах Пчеловодства
1       10:21 27.01.2020
Ответить

Змееголовниковый мёд - это мед из нектара змееголовника, произрастающего на Кавказе, Алтае, Украине. Он светлый, прозрачный, с приятным ароматом и вкусом. ...
( Читать дальше )


!
Алфавитный указатель терминов - > Пчеловодство - Термины и определения - > Законодательство - > Содержание Пчел
1       10:48 24.11.2016
Ответить

АЛФАВИТНЫЙ УКАЗАТЕЛЬ ТЕРМИНОВ

акарапидоз 91

амебиаз 92

апитоксин 171

аскосфероз 94

аспергиллез 95

болезнь «черный маточник» 96

болезнь деформации крыла 97

болезнь пчел 90

бонитировка 78

борть 182

браулез 98

брожение меда 142

варрооз ...
( Читать дальше )


!
собрать всех руководителей! - > перспективы развития - поднимаемые ранее вопросы - > Перспективы Развития Пчеловодства
NIVAR       20:44 27.12.2016
Ответить

Форумчане, зачем показывать свою заумность на хитрых словах, нужны конкретные предложения и дела. Вот создали Союз "БелАпиЮнион" пока только коммерческие структуры ...
( Читать дальше )


!
интересно.может там просто на чем то конденсирует ... - > Зимовка - > Форум
1       19:49 08.02.2017
Ответить

интересно.может там просто на чем то конденсирует и если оч много стекать начинает? + от потепления оттаивает а к вечеру подмерзает.

...
( Читать дальше )


!
без названия... - > Кто производит ульи в Белоруссии? - > Ульи - > Инвентарь
ulei-by       09:58 08.03.2017
Ответить

Компания ИП Барташевич ВА. УЛЬИ.БЕЛ www.svoj.ved.by

1 - 18:13 05.11.2016 - Кто производит ульи в Белоруссии?
подскажите а кто вообще у нас производит ульи? желательно с ссылками на ...
( Читать дальше )


!
Первое фото с голубыми мелкими цветочками - бруне... - > Время цветения медоносов Вашей местности!? - > Медоносы
bezak       01:14 19.04.2017
Ответить

1 ... и два вида цветуечков. вот с названиями у меня затык.

если кто знает напишите плиз.
Первое фото с голубыми мелкими ...
( Читать дальше )


!
за 10 месяцев - 19 000 посетителей! - > Успехи нашего портала - > ... - > Другие Темы
1       04:27 29.08.2017
Ответить

за 10 месяцев - 19 000 посетителей!

произведен пересчет наших достижений по мейл ру.

за 10 месяцев нас посетили 19 000 посетителей.

просмотрели более 106 000 страниц.

на сайте около ...
( Читать дальше )


!
Мед - как лекарственное средство.СОТОВЫЙ И ЗАБРУСОВЫЙ МЕД. - > МЕД - КАК ЛЕКАРСТВЕННОЕ СРЕДСТВО. ПОКАЗАНИЯ К ПРИМЕНЕНИЮ МЕДА. - > Мед - > О Продуктах Пчеловодства
Гость       21:10 26.12.2017
Ответить

CОТОВЫЙ И ЗАБРУСОВЫЙ МЕД.

Сотовый мед – это мед, который человек употребляет вместе с сотами. Забрус – это верхние крышечки пчелиных сот, ...
( Читать дальше )


!
за 2 года из 2 роев - 40 семей - > Как максимально быстро нарастить пасеку? - > Формирование Отводков, Пакетов - > Содержание Пчел
Пан Пасечник       22:09 11.05.2018
Ответить

за 2 года из 2 роев - 40 семей

за 2 года из 2 роев - 40 семей:

Купил 9 маток плодных и 5 августа две семьи ( роя) ...
( Читать дальше )


!
Ивовый мёд - > Сорта меда. Профессиональный подход. - > Мед - > О Продуктах Пчеловодства
1       10:23 27.01.2020
Ответить

Ивовый мёд - это сорт с цветков различных видов деревьев и кустарников ивы, которых насчитывается около 170. Он розовато-желтого или темно-янтарного ...
( Читать дальше )


!
Введение - > Пчеловодство - Термины и определения - > Законодательство - > Содержание Пчел
1       10:48 24.11.2016
Ответить

Установленные в стандарте термины расположены в систематизированном порядке, отражающем систему понятий в пчеловодстве.

Для каждого понятия установлен один стандартизированный термин.

Не рекомендуемые к ...
( Читать дальше )


!
Программа продвижения и рекламы своего местного мёда как здорового образа жизни и вытеснение в повседневном обиходе сахара медом. - > перспективы развития - поднимаемые ранее вопросы - > Перспективы Развития Пчеловодства
Николай       20:48 27.12.2016
Ответить

Я пару раз слышал выступления Завальнюка. Выступления это конечно ещё не всё. Но вот если он говорил пчеловодам приезжайте в Будслав ...
( Читать дальше )


!
кстать в этом плане мне понравилась конструкция Юр... - > Зимовка - > Форум
1       19:53 08.02.2017
Ответить

кстать в этом плане мне понравилась конструкция Юры Щеголева. на братской свече показывал.

улики для отводков. сделаны из экструдированного пенополистирола http://www.ursa.ru/products/ursa-xps-n-iii-l-g4/

у него ...
( Читать дальше )


!
Производство ульев и оборудования к ним. Сайт: svoj-med.by, в кириллической доменной зоне: УЛЬИ.БЕЛ - > Кто производит ульи в Белоруссии? - > Ульи - > Инвентарь
ulei-by       10:09 08.03.2017
Ответить

Производство ульев и оборудования к ним. Сайт: svoj-med.by, в кириллической доменной зоне: УЛЬИ.БЕЛ

ulei-by - 09:58 08.03.2017 - без названия
1 - 18:13 05.11.2016 - Кто производит ульи в Белоруссии?
подскажите а кто вообще у нас ...
( Читать дальше )


!
Возможно, будет маргаритка... - > Время цветения медоносов Вашей местности!? - > Медоносы
bezak       01:18 19.04.2017
Ответить

1 ... И ащо какой-то цветок.
Возможно, будет ...
( Читать дальше )


!
Мед - как лечебное средство.МЕТОДЫ ВВЕДЕНИЯ МЕДА В ОРГАНИЗМ ЧЕЛОВЕКА. - > МЕД - КАК ЛЕКАРСТВЕННОЕ СРЕДСТВО. ПОКАЗАНИЯ К ПРИМЕНЕНИЮ МЕДА. - > Мед - > О Продуктах Пчеловодства
Гость       21:13 26.12.2017
Ответить

Несколько остановлюсь на методах введения меда в организм человека.

Употребление меда внутрь.

Внутренний прием — классический метод введения любого лекарства в организм. Через ...
( Читать дальше )


!
Пара книг о шмелях - > Немного о шмелях - > Форум
Максим       22:25 11.05.2018
Ответить

Шмели - опылители клевера.

В.С. Гребенников.

Москва, Россельхозиздат,

1984, 62 с.

Разведение и использование шмелей ...
( Читать дальше )


!
Иссоповый мёд - > Сорта меда. Профессиональный подход. - > Мед - > О Продуктах Пчеловодства
1       10:24 27.01.2020
Ответить

Иссоповый мёд - это мед с цветков полукустарникового растения ...
( Читать дальше )


!
МЕЖГОСУДАРСТВЕННЫЙ СТАНДАРТ ПЧЕЛОВОДСТВО Термины и определения - > Пчеловодство - Термины и определения - > Законодательство - > Содержание Пчел
Гость       10:50 24.11.2016
Ответить

МЕЖГОСУДАРСТВЕННЫЙ СТАНДАРТ ПЧЕЛОВОДСТВО Термины и определения

Bee-keeping. Terms and definitions

Дата введения — 2015—06—01

1 Область применения

Настоящий стандарт устанавливает термины и определения понятий ...
( Читать дальше )


!
Глобализация, себестоимость и другие основные проблемы пчеловодства! - > перспективы развития - поднимаемые ранее вопросы - > Перспективы Развития Пчеловодства
сирота канадская       21:01 27.12.2016
Ответить

А вот вам без троллинга- какая должна быть себестоимость пчелопродукции, чтобы успешно конкурировать на европейском( или на любом другом)? А теперь ...
( Читать дальше )


!
прогноз не сбылся :( теперя показывает - 20 на... - > такими темпами, в середине февраля пчелки обле - > Форум
1       20:01 08.02.2017
Ответить

прогноз не сбылся :( теперя показывает - 20 на 15 февраля, а жалько, а мот и наоборот ...
( Читать дальше )


!
Это арабис,медонос, почвопокровное растен... - > Время цветения медоносов Вашей местности!? - > Медоносы
bezak       01:20 19.04.2017
Ответить

1 вот видео работы пчелок по данным цветочкам </citurl>
вот видео работы пчелок по данным цветочкам
Это арабис,медонос, почвопокровное ...
( Читать дальше )


!
Мед - как лечебное средство. МЕДОВЫЕ ВАННЫ. - > МЕД - КАК ЛЕКАРСТВЕННОЕ СРЕДСТВО. ПОКАЗАНИЯ К ПРИМЕНЕНИЮ МЕДА. - > Мед - > О Продуктах Пчеловодства
Гость       21:15 26.12.2017
Ответить

Мед - как лечебное средство. МЕДОВЫЕ ВАННЫ. Мед - как лечебное средство. МЕДОВЫЕ ВАННЫ. Мед - как лечебное средство. МЕДОВЫЕ ВАННЫ.

Несколько остановлюсь на методах введения меда в организм человека.

Употребление меда внутрь.

Внутренний прием — классический метод введения любого лекарства в организм. Через ...
( Читать дальше )


!
звоните обсудим или пишите в вайбер +375336173... - > Продам маток породы Бакфаст и Карника, пчелопакеты 2018 год. Гомельская область, Калинковичский район. - > Матки, Пакеты, Семьи, Вощина - > Товары
Гость       19:16 16.05.2018
Ответить

звоните обсудим или пишите в вайбер ...
( Читать дальше )


!
Каштановый мёд - > Сорта меда. Профессиональный подход. - > Мед - > О Продуктах Пчеловодства
1       10:26 27.01.2020
Ответить

Каштановый мёд - это сорт меда из нектара цветков каштанового дерева, растущего главным образом в Крыму и ...
( Читать дальше )


!
Термины и определения - общие понятия - > Пчеловодство - Термины и определения - > Законодательство - > Содержание Пчел
1       11:16 24.11.2016
Ответить

2 Термины и определения

Общие понятия

1 пчеловодство (Ндп. пчеловождение): Под отрасль сельского хозяйства, занимающаяся разведением. содержанием и использованием пчел для производства продуктов ...
( Читать дальше )


!
Меняться означает решимость оставить ненужное, старое. - > перспективы развития - поднимаемые ранее вопросы - > Перспективы Развития Пчеловодства
сирота канадская       21:06 27.12.2016
Ответить

Моя задача - попытаться заставить вас задуматься о ваших шагах- что приобретете , а что потеряете. И готовы ли белорусские ...
( Читать дальше )


!
зацвела лещина, лесной орех. сережки открылис... - > Время цветения медоносов Вашей местности!? - > Медоносы
1       08:16 09.03.2017
Ответить

зацвела лещина, лесной орех.  сережки открылис... зацвела лещина, лесной орех.  сережки открылис... зацвела лещина, лесной орех.  сережки открылис...

зацвела лещина, лесной орех.

сережки открылись ...
( Читать дальше )


!
Мед - как лечебное средство. - > МЕД - КАК ЛЕКАРСТВЕННОЕ СРЕДСТВО. ПОКАЗАНИЯ К ПРИМЕНЕНИЮ МЕДА. - > Мед - > О Продуктах Пчеловодства
Гость       21:21 26.12.2017
Ответить

МЕДОВЫЕ ВАННЫ.

Медовая ванна - воистину уникальная процедура. Такие ванны нормализуют обменные процессы в организме, укрепляют иммунитет и приводят в порядок сердечно-сосудистую, ...
( Читать дальше )


!
Кипрейный мёд - > Сорта меда. Профессиональный подход. - > Мед - > О Продуктах Пчеловодства
1       10:27 27.01.2020
Ответить

Кипрейный мёд - это сорт меда из нектара цветков кипрея узколистного (иван-чая), встречающегося в диком виде довольно часто. Мед водянисто-прозрачный, иногда ...
( Читать дальше )


!
Биология пчел - > Пчеловодство - Термины и определения - > Законодательство - > Содержание Пчел
1       11:16 24.11.2016
Ответить

Биология пчел

6 пчелиная семья: Сообщество, состоящее из пчел, матки, трутней летом, гнезда с расплодом в активный период и корма.

7 ...
( Читать дальше )


!
зимовка - > Зимовка - > Форум
Иван Д.       23:15 08.02.2017
Ответить

это было в потепление после сильных морозов

боковая стенка в одну доску 40мм поэтому промерзает

гнездо собрано к этой стенке на 10рамках

потолок - ...
( Читать дальше )


!
в парке несвижского замка. еще одно дерево замет... - > Время цветения медоносов Вашей местности!? - > Медоносы
1       08:20 09.03.2017
Ответить

в парке несвижского замка.   еще одно дерево замет... в парке несвижского замка.   еще одно дерево замет...

в парке несвижского замка.

еще одно дерево заметил раскрывшее как лещина сережки.

деревья отдельно стоящие, но

забыл только как называется, кто знает напомните ...
( Читать дальше )


!
если зайти в комментарий. то ответ будет прикреп... - >
1 ... п - > ... - > Медоносы
1       08:45 19.04.2017
Ответить

если зайти в комментарий.

то ответ будет прикреплен к комментарию.

вот как этот.

вот только не факт. что так будет проще ...
( Читать дальше )


!
Что вас конкретно интересует?... - > Покупка ветпрепаратов с китайских сайтов - > Ветпрепараты и Химикаты - > Товары
виктор67       21:28 26.12.2017
Ответить

Что вас конкретно ...
( Читать дальше )


!
Клеверный мёд - > Сорта меда. Профессиональный подход. - > Мед - > О Продуктах Пчеловодства
1       10:29 27.01.2020
Ответить

Клеверный мёд - с цветков клевера. Мед светлый, почти бесцветный, прозрачный, с нежным ароматом и приятным своеобразным вкусом. Быстро кристаллизуется в ...
( Читать дальше )


!
Технология пчеловодства - > Пчеловодство - Термины и определения - > Законодательство - > Содержание Пчел
1       11:18 24.11.2016
Ответить

Технология пчеловодства

34 медосбор (Нрк. взяток): Сбор и принос в улей нектара пчелами.

35 главный медосбор: Интервал времени, в течение которого ...
( Читать дальше )


!
пчелы - > ОДНИ ВОПРОСЫ))) - > Форум
mativ7       07:41 09.02.2017
Ответить

Да- мы тут не далеко) Несвиж рядом,а поповоду профессионально ты что)) куда там мне, начало бы освоить,для себя для семьи для ...
( Читать дальше )


!
там же в несвижском парке (около замка)... - > Время цветения медоносов Вашей местности!? - > Медоносы
1       08:23 09.03.2017
Ответить

там же в несвижском парке (около замка)... там же в несвижском парке (около замка)...

там же в несвижском парке (около замка), очень порадовал куст.

сперва мне показалось что это стручки с семенами решил подойти посмотреть.

...
( Читать дальше )


!
и кстати так фактически любой комментарий становит... - >
1 ... п - > ... - > Медоносы
1       08:49 19.04.2017
Ответить

и кстати так фактически любой комментарий становится независимой темой, и будет отображаться в активных темах .

наверное так и следует растасовать ...
( Читать дальше )


?
возможно ли подключение и контроль на постоянной основе сразу всех ульев? - > APIVOX AUDITOR акустический помощник пчеловода. - > Прочее - > Товары
1       20:29 08.09.2017
Ответить

да интересно возможно ли подключение и контроль на постоянной основе сразу всех ульев? какова цена?

и было бы интересно выложить не ...
( Читать дальше )


!
Мед - как лечебное средство. МЕДОВЫЙ МАССАЖ. - > МЕД - КАК ЛЕКАРСТВЕННОЕ СРЕДСТВО. ПОКАЗАНИЯ К ПРИМЕНЕНИЮ МЕДА. - > Мед - > О Продуктах Пчеловодства
Гость       21:33 26.12.2017
Ответить

Мед - как лечебное средство. МЕДОВЫЙ МАССАЖ. Мед - как лечебное средство. МЕДОВЫЙ МАССАЖ. Мед - как лечебное средство. МЕДОВЫЙ МАССАЖ.

МЕДОВЫЙ МАССАЖ.

В современном мире одной из разновидностей рефлексотерапии является медовый массаж, который гармонично сочетает в себе целебные свойства пчелиного меда и ...
( Читать дальше )


?
Подскажите на сколько актуально? Интересует улей:... - > Улей многокорпусный - > Ульи - > Инвентарь
Дмитрий       12:55 22.05.2018
Ответить

Подскажите на сколько актуально?

Интересует улей:

1. Три корпуса Рут (без углублений для захвата руками)

2. Сетчатое дно

3. Подкрышник

4. ...
( Читать дальше )


!
Кленовый мёд - > Сорта меда. Профессиональный подход. - > Мед - > О Продуктах Пчеловодства
1       10:30 27.01.2020
Ответить

Кленовый мёд - это мед из нектара цветков клена остролистного, встречающегося почти во всех лесах России, Украины, Беларуси. Он относится к ...
( Читать дальше )


!
Селекция пчел - > Пчеловодство - Термины и определения - > Законодательство - > Содержание Пчел
1       11:19 24.11.2016
Ответить

Селекция пчел

62 порода пчел (Нрк. роса): Группа пчелиных семей общего происхождения, сформировавшаяся в определенных природно-климатических условиях, обладающая комплексом признаков, устойчиво ...
( Читать дальше )


!
я не разочаровался. дело хлопотное но интересное. ... - > ОДНИ ВОПРОСЫ))) - > Форум
1       09:45 09.02.2017
Ответить

я не разочаровался. дело хлопотное но интересное. счас жду не дождусь когда пчелки проснуться.

эт как с домашним питомцем :) уже и ...
( Читать дальше )


!
на даче, несвиж раскрываются почки жимолости... - > Время цветения медоносов Вашей местности!? - > Медоносы
Гость       08:27 09.03.2017
Ответить

на даче, несвиж раскрываются почки жимолости...

на даче, несвиж раскрываются почки ...
( Читать дальше )


!
Ближайшая поездка – 29 апреля в Вильнюс на праздни... - > Ближайшие поездки за границу. Чехия-Польша. Литва (Вильнюс - открытие пчеловодного сезона). Украина (Закарпатье). ВИЗЫ - > Мероприятия - > Обучение
МОЭ       17:15 19.04.2017
Ответить

Ближайшая поездка – 29 апреля в Вильнюс на праздник «Открытие пчеловодного сезона». Организаторы – Общество пчеловодов Вильнюсского региона и фирма «Бичу ...
( Читать дальше )


!
мед - как лечебное средство. МЕД В БАНЕ. - > МЕД - КАК ЛЕКАРСТВЕННОЕ СРЕДСТВО. ПОКАЗАНИЯ К ПРИМЕНЕНИЮ МЕДА. - > Мед - > О Продуктах Пчеловодства
Гость       21:42 26.12.2017
Ответить

мед - как лечебное средство. МЕД В БАНЕ. мед - как лечебное средство. МЕД В БАНЕ. мед - как лечебное средство. МЕД В БАНЕ.

...
( Читать дальше )


!
Клюквенный мёд - > Сорта меда. Профессиональный подход. - > Мед - > О Продуктах Пчеловодства
1       10:32 27.01.2020
Ответить

Клюквенный мёд - мед с цветков клюквы, красноватого цвета, нежного вкуса, очень ароматный, но менее сладкий, чем другие сорта ...
( Читать дальше )


!
Болезни пчел - > Пчеловодство - Термины и определения - > Законодательство - > Содержание Пчел
Гость       11:20 24.11.2016
Ответить

Болезни пчел

90 болезнь пчел: Нарушение нормальной жизнедеятельности пчелиной семьи под влиянием неблагоприятных внешних и внутренних факторов, вызывающее гибель отдельных особей, ...
( Читать дальше )


!
ну да влаге куда то деваться то надо у меня счас... - > Зимовка - > Форум
1       10:33 09.02.2017
Ответить

ну да влаге куда то деваться то надо

у меня счас получается вся влага под крышу уходит.

а там если плотно ...
( Читать дальше )


!
черная смородина распускает почки... - > Время цветения медоносов Вашей местности!? - > Медоносы
1       08:28 09.03.2017
Ответить

черная смородина распускает почки...

черная смородина распускает ...
( Читать дальше )


?
без названия - > Принимаем заказы на пчелопакеты и плодных маток карника 2017г. - > Матки, Пакеты, Семьи, Вощина - > Товары
Гость       21:23 19.04.2017
Ответить

2пчелопакета,Карника 3+1 или 4+2.Рамки Рутовские (435/230)

Сколько будет стоить соответственно,где Вы и как забирать? Когда?

Дайте цену с футляром или с его возвратом.Заранее ...
( Читать дальше )


!
украинский опыт зимовки слабых семей - > Зимовка маток, нуклеусов, слабых отводков - > ... - > Содержание Пчел
1       21:30 16.09.2017
Ответить

интересный ролик. примеры зимовки. например две рамки одна улочка.

объяснение некоторых моментов. поведение клуба при разных вариантах ...
( Читать дальше )


!
Мед - как лечебное средство.ИНГАЛЯЦИИ С МЕДОМ. - > МЕД - КАК ЛЕКАРСТВЕННОЕ СРЕДСТВО. ПОКАЗАНИЯ К ПРИМЕНЕНИЮ МЕДА. - > Мед - > О Продуктах Пчеловодства
Гость       21:44 26.12.2017
Ответить

Ингаляции с медом.

Для проведения ингаляции с медом, нужно взять натуральный мед и развести подогретой кипяченой водой в соотношении 1:5 и распылять ...
( Читать дальше )


!
Лавандовый мёд - > Сорта меда. Профессиональный подход. - > Мед - > О Продуктах Пчеловодства
1       10:33 27.01.2020
Ответить

Лавандовый мёд - мед из светло-синих или голубовато-фиолетовых цветков многолетнего эфиромасличного растения лаванды, собирается на южном берегу Крыма, на Кубани и ...
( Читать дальше )


1 2 3 4 5 6 7 8 9 10 11 12 13 14
ВПЕРЕД -->



...Узнай что еще ищут! ...
  • Прочее

  • Случайные темы:
    Пчеловод - Не всегда является объектом налогообложения

    11. Не является объектом налогообложения единым налогом розничная торговля (реализация):

    подакцизными товарами, товарами, подлежащими маркировке контрольными (идентификационными) знаками, – для плательщиков – ...


    Вопросы:
    Кстати, inff.by - что за хостинг?

    --Кстати, inff.by - что за хостинг?

    -это мой домен

    двиг разрабатывается как возможность создания бесплатных сайтов.

    --Как можно войти посмотреть?

    -грубо говоря http://sozdai-sait-sam.ru/rk10002.php ...


    Вопросы:

        Подробнее


    При полном или частичном использовании информации, обязательна гиперссылка:
    <a href=http://bee.inff.by/> пчелы пчеловодам, производителям, потребителям </a>